Porzione di trifamiliare in vendita

Calcinato, Via Risorgimento
€ 330.000
3 locali 3 locali
174 Mq 174 Mq
1 bagno 1 bagno

Porzione di trifamiliare in vendita

Calcinato, Via Risorgimento

Descrizione annuncio

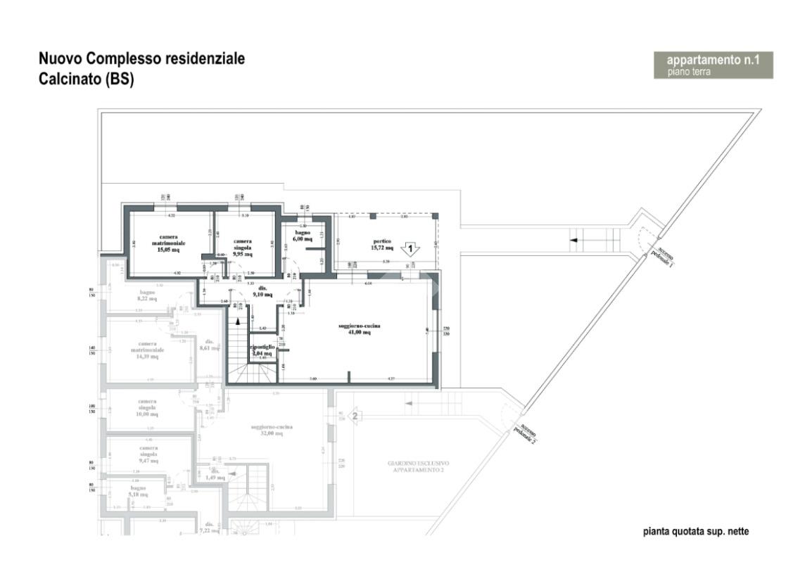
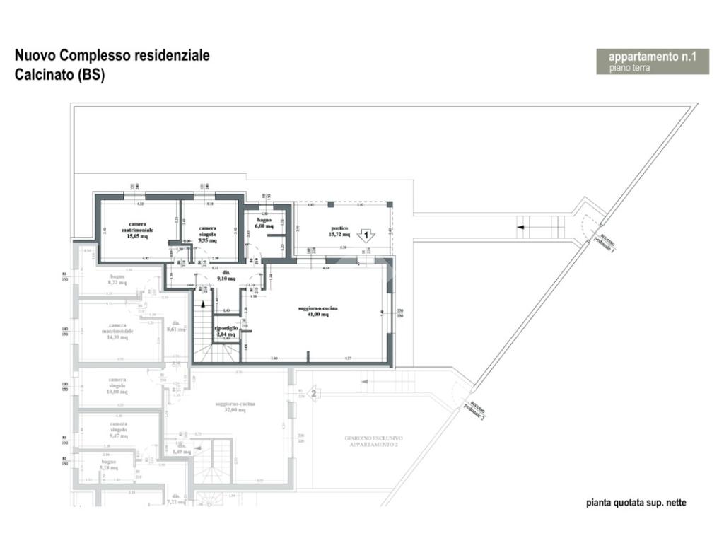
Nel cuore di Calcinatello, frazione di Calcinato, si propone in vendita una porzione di trifamiliare di nuova costruzione, pronta nel 2025.

COSA SAPERE SULLA CASA

Soggiorno - cucina - camera matrimoniale - camera singola - bagno - disimpegno - ripostiglio - giardino - portico

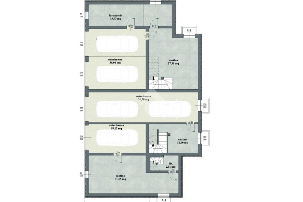
interrato: cantina - garage - lavanderia

La posizione strategica consente di godere della tranquillità della zona residenziale, pur essendo a breve distanza dai principali servizi e collegamenti. Un'opportunità ideale per chi cerca una soluzione abitativa moderna e raffinata in un contesto esclusivo.

ANNO DI COSTRUZIONE: 2025 (in fase di costruzione)
CONTESTO E UBICAZIONE: Calcinato dista da Montichiari 6,5 km circa, da Carpenedolo 13,7 km e da Desenzano del Garda 13,8 km, il centro commerciale più grande è 'Il Leone Shopping Center' che si trova a Lonato del Garda a 12,6 km dal paese dove al suo interno possiamo trovare più di 120 negozi.
I due caselli autostradali più vicini sono quelli di Brescia est a 11,7 km e quello di Desenzano a 12,6 km.

Mostra tutto

Nelle vicinanze

Trasporto pubblico Trasporto pubblico
Ponte San Marco - Calcinato
Ponte San Marco - Calcinato
1,8 Km
Ponte S. Marco
Ponte S. Marco
2,0 Km
Ricariche auto elettriche Ricariche auto elettriche
Gardauno Municipio di Calcinato
2,0 Km
Scuole Scuole
Scuola Elementare Ponte San Marco
1,8 Km
Scuole
1,9 Km
Farmacia Farmacia
Farmacia
1,8 Km
Supermercati Supermercati
EuroSpin
1,7 Km
Supermercati
2,3 Km
Negozi Negozi
3S
1,7 Km
Bar Bar
Bar Ponte
1,9 Km
Ristoranti Ristoranti
Chef Express Campagnola Ovest
1,8 Km
Sullivan
2,3 Km
Baratello
2,4 Km
Mostra tutto

Caratteristiche

Rif.:
61147727
Piano:
Su più livelli di 2
Totale piani:
2
Posti auto:
1
Camere da letto:
2
Arredamento:
Assente
Mostra tutto
Prezzo Prezzo
€ 330.000
Rata mutuo Rata mutuo
€ 1.564 / mese
Spese annue Spese annue
€ 0
Proponi il tuo prezzoProponi il tuo prezzo

Classe Energetica

A4
A4
A4
A4
A4
A4
A4
A4
A4
EP globale non rinnovabile:
0.00 kW h/m² anno
EP globale rinnovabile:
0.00 kW h/m² anno
EP invernale del fabbricato:
EP estiva del fabbricato:
Anno di costruzione:
2025
Riscaldamento:
Autonomo
Tipo impianto:
A pavimento
Tipo alimentazione:
Altro

Ti interessa visionare l'immobile?

Fissa un appuntamento  Fissa un appuntamento

Richiedi informazioni

Clicca su Leggi per aprire l'informativa
* Questi campi sono obbligatori

Calcola il tuo mutuo

Semplice e senza impegno
Anticipo

( % )
Mutuo

( % )

pochi semplici passi

inserisci i tuoi dati
Questionario completato
Grazie per aver richiesto un appuntamento senza impegno con un nostro Consulente del Credito e Assicurativo.

Hai inserito correttamente tutti i dati necessari e a breve riceverai una e-mail con un link da convalidare per inviare i tuoi dati.
Affiliato
Tecnocalcinato Srl
Via G. Marconi, 22 25011 Calcinato (BS)

Il nostro staff


  • Victoria Belotti
    Coordinatrice

  • Alessia Gallina
    Responsabile

  • Andra Larissa Giurgi
    Collaboratrice

  • Erika Pali
    Collaboratrice

  • Nicolò Paoletti
    Affiliato
Via G. Marconi, 22 25011 Calcinato (BS)
Zona: Calcinato-Ponte San Marco-Calcinatello
Mostra su mappa
Affiliato
Tecnocalcinato Srl
Via G. Marconi, 22 25011 Calcinato (BS)

2026 Tecnocasa Franchising S.p.A. - P. IVA 08365160152 - Via Monte Bianco 60/A 20089 Rozzano (MI). Ogni agenzia ha un proprio titolare ed è autonoma. Privacy policy | Policy utilizzo | Cookie policy