Rustico in vendita

Calcinato, Via S. Vincenzo
€ 106.000
3 locali 3 locali
150 Mq 150 Mq

Rustico in vendita

Calcinato, Via S. Vincenzo

Descrizione annuncio

Nel cuore di Calcinato, si propone in vendita un fabbricato a rustico in un contesto tranquillo

COSA SAPERE SULLA CASA

Soggiorno/Cucina - Camera Matrimoniale - Camera Singola - Bagno - Soppalco - Taverna - Lavanderia - Giardino Privato - Box singolo

DESCRIZIONE E PARTICOLARITA'

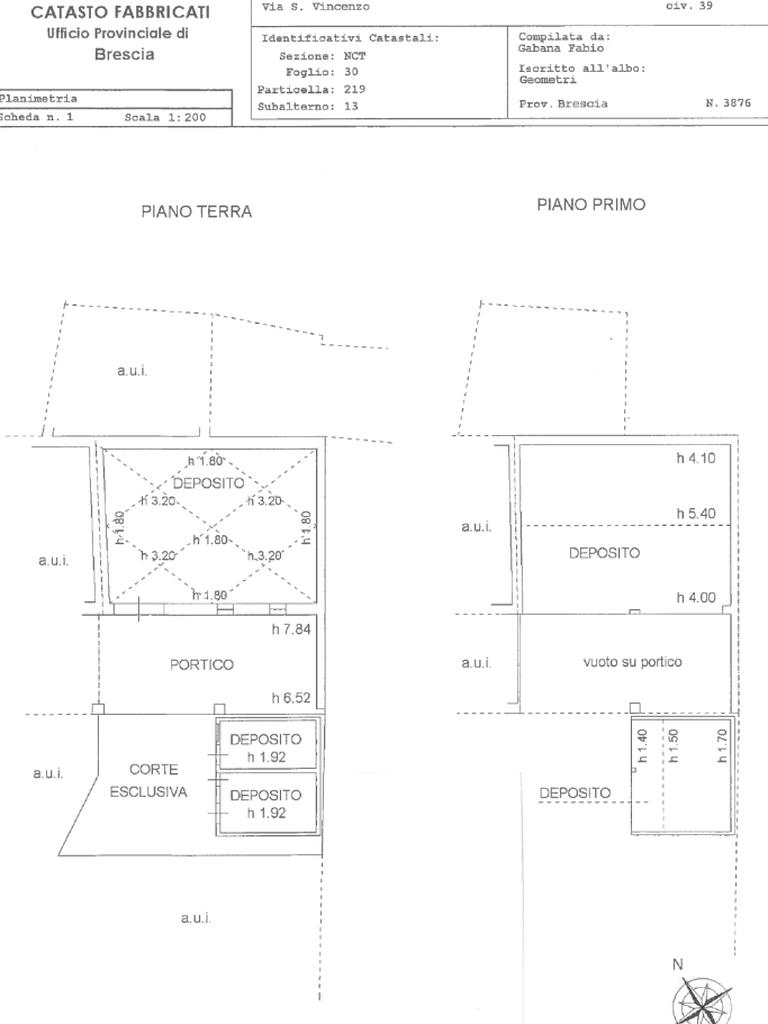
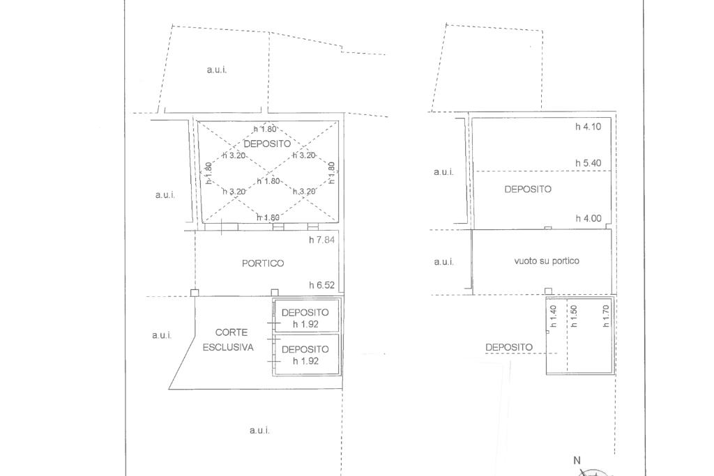
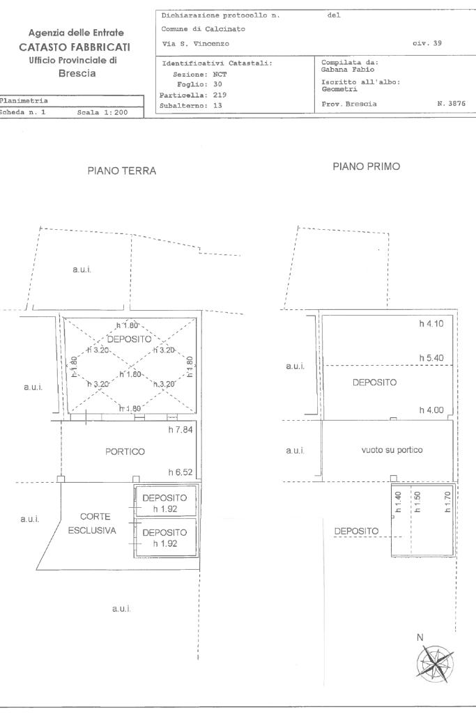
Si propone in vendita fabbricato allo stato rustico, attualmente accatastato come magazzino, interamente da ristrutturare.

L’immobile è inserito in un contesto composto da tre unità immobiliari, con corte comune a servizio delle stesse e corte esclusiva di pertinenza.

È prevista la possibilità di acquisto delle unità singolarmente oppure in un’unica soluzione, rendendo l’immobile idoneo sia per utilizzo diretto che per operazioni di valorizzazione immobiliare.

SI PRECISA LA CERTIFICAZIONE ENERGETICA E' PROVVISORIA.

ANNO DI COSTRUZIONE: 1967


CONTESTO E UBICAZIONE: dista da Montichiari 6,5 km circa, da Carpenedolo 13,7 km e da Desenzano del Garda 13,8 km, il centro commerciale più grande è 'Il Leone Shopping Center' che si trova a Lonato del Garda a 12,6 km dal paese dove al suo interno possiamo trovare più di 120 negozi.
I due caselli autostradali più vicini sono quelli di Brescia est a 11,7 km e quello di Desenzano a 12,6 km

Mostra tutto

Nelle vicinanze

Trasporto pubblico Trasporto pubblico
Ponte San Marco - Calcinato
Ponte San Marco - Calcinato
2,6 Km
Ponte S. Marco
Ponte S. Marco
2,7 Km
Ricariche auto elettriche Ricariche auto elettriche
Gardauno Municipio di Calcinato
770 m
Scuole Scuole
Scuole
150 m
Scuola Elementare Ponte San Marco
2,4 Km
Farmacia Farmacia
Farmacia
2,7 Km
Supermercati Supermercati
EuroSpin
1,0 Km
Supermercati
2,6 Km
Negozi Negozi
3S
2,5 Km
Bar Bar
Bar Ponte
2,7 Km
Ristoranti Ristoranti
Baratello
670 m
Ristoranti
2,5 Km
Sullivan
2,7 Km
Mostra tutto

Caratteristiche

Rif.:
61175813
Totale piani:
2
Box:
2
Posti auto:
2
Arredamento:
Assente
Condizionamento:
Assente
Mostra tutto
Prezzo Prezzo
€ 106.000
Rata mutuo Rata mutuo
€ 502 / mese
Spese annue Spese annue
€ 0
Proponi il tuo prezzoProponi il tuo prezzo

Classe Energetica

G
G
G
G
G
G
G
G
G
Anno di costruzione:
1967
Riscaldamento:
Autonomo
Tipo impianto:
A stufa
Tipo alimentazione:
Altro

Ti interessa visionare l'immobile?

Fissa un appuntamento  Fissa un appuntamento

Richiedi informazioni

Clicca su Leggi per aprire l'informativa
* Questi campi sono obbligatori

Calcola il tuo mutuo

Semplice e senza impegno
Anticipo

( % )
Mutuo

( % )

pochi semplici passi

inserisci i tuoi dati
Questionario completato
Grazie per aver richiesto un appuntamento senza impegno con un nostro Consulente del Credito e Assicurativo.

Hai inserito correttamente tutti i dati necessari e a breve riceverai una e-mail con un link da convalidare per inviare i tuoi dati.
Affiliato
Tecnocalcinato Srl
Via G. Marconi, 22 25011 Calcinato (BS)

Il nostro staff


  • Victoria Belotti
    Coordinatrice

  • Alessia Gallina
    Responsabile

  • Andra Larissa Giurgi
    Collaboratrice

  • Erika Pali
    Collaboratrice

  • Nicolò Paoletti
    Affiliato
Via G. Marconi, 22 25011 Calcinato (BS)
Zona: Calcinato-Ponte San Marco-Calcinatello
Mostra su mappa
Affiliato
Tecnocalcinato Srl
Via G. Marconi, 22 25011 Calcinato (BS)

2026 Tecnocasa Franchising S.p.A. - P. IVA 08365160152 - Via Monte Bianco 60/A 20089 Rozzano (MI). Ogni agenzia ha un proprio titolare ed è autonoma. Privacy policy | Policy utilizzo | Cookie policy